|
|
所属类别:防爆型天然气、乙炔气电加热器 |
[关闭本页] |
防爆电加热器 |
是一种用于防爆场合的以消耗电能转换为热能来对需加热物料进行加热的,是在电加热器的基础上再改进而得到的一种防爆装置。它是我司在吸收国内外先进技术的基础上,研制出来的一种节能高效、新型安全、能提供高温热能的防爆工业炉 |
|

|
防爆电加热器
定义:是一种用于防爆场合的以消耗电能转换为热能来对需加热物料进行加热的,是在电加热器的基础上再改进而得到的一种防爆装置。它是我司在吸收国内外先进技术的基础上,研制出来的一种节能高效、新型安全、能提供高温热能的防爆工业炉。
工作原理:在工作中低温流体介质通过管道在压力作用下进入其输入口,沿着电加热容器内部特定换热流道,运用流体热力学原理设计的路径,带走电热元件工作中所产生的高温热能量,使被加热介质温度升高而最终达到加热目的这一原理。
特点:
1、 产品具有体积小、重量轻、结构紧凑、安装操作简便。
2、 产品加热时无污染,能在较低的工作压力下获得较高的工作温度。
3、 采用先进的自动控温模式,自动化程度高;
4、 采用先进的控制技术,控温精度可达到±1℃~±0.1℃;
5、 产品备有多个联锁接口,随时行有效的监控;
6、 具有超温报警系统,保障系统的安全运行。
7、 采用内热式闭路循环供热,热利用率高。
8、 节能效果显著,运行费用低且回收投资快。
|
|
|

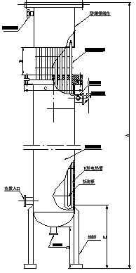
示意图 | |
|
|
|
|
|